Clean and Appealing - 2021 6' x 7' Beverage Concession Trailer with HCD Insignia
Clean and Appealing - 2021 6' x 7' Beverage Concession Trailer with HCD Insignia
Item No: CAP-UFT547B4
Location: California
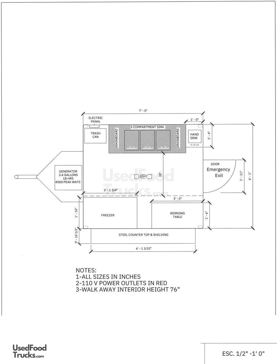
Specifications
- Trailer Specifications
- VEHICLE Year of Manufacture: 2021
- Kitchen Equipment Runs On: ELECTRICITY
Equipment List
- Vehicle Features
- Concession Window(s): Full length of front
- Removable Trailer Hitch
- Stainless Steel Wall Covers
- Floor Drains: One in front near hitch side
- Diamond Plated Aluminum Flooring
- Exterior Customer Counter: Fold down
- Equipment Power Supply
- Shore Power Cord: 1
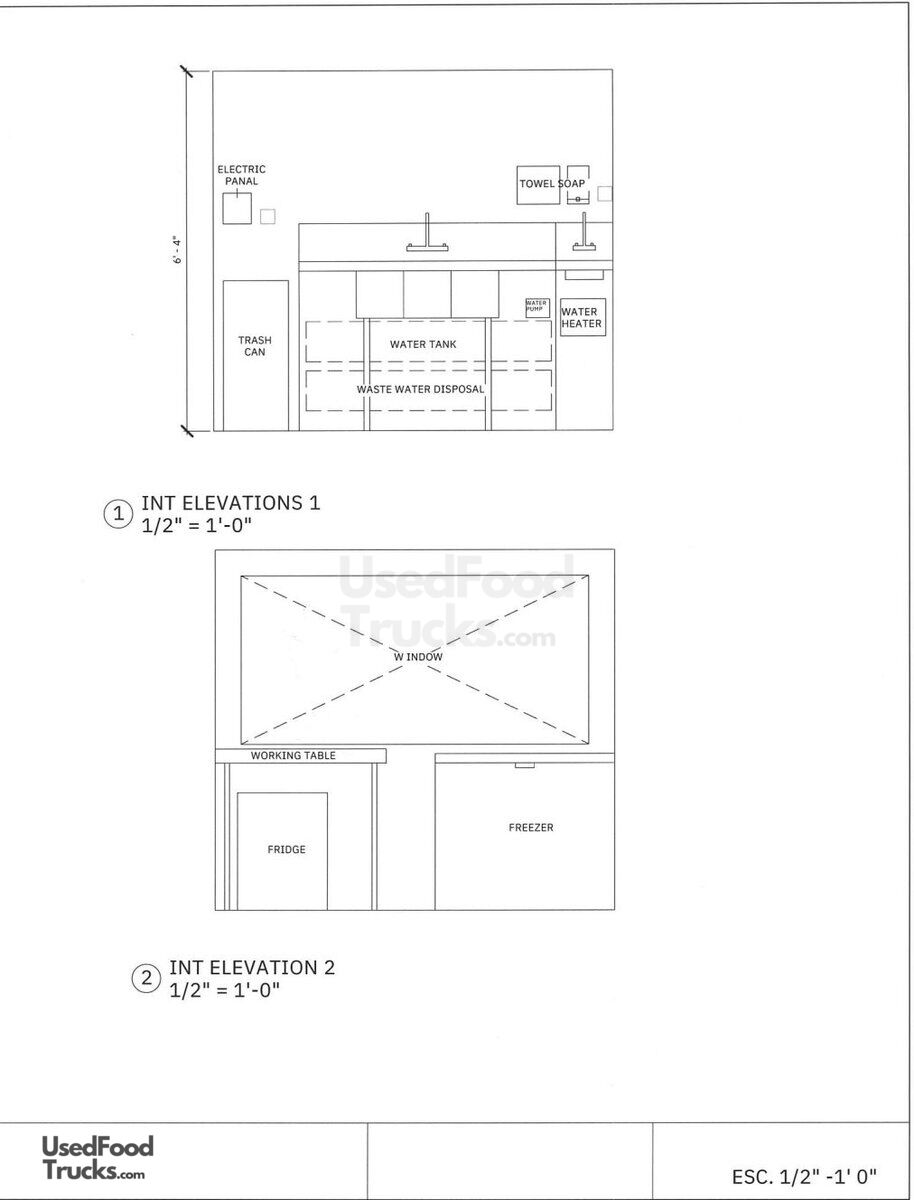
- Refrigeration
- Deep Freezer: Galaxy model 177CF5
- Refrigerator: Summit beverage cooler
- Kitchen Equipment
- Fire Extinguisher
- Work Table
- Electrical
- Interior Lighting: LED interior
- Electrical Outlets: 6
- Breaker Panel
- Plumbing
- Hot Water Heater
- Hand-washing Sink
- Triple Sink
- Fresh Water Tank: 20 gallons
- Gray Water Tank: 30 gallons
- Retail Equipment
- Open Signage: A-frame board
Find Events for Your Food Truck
From corporate gatherings to weddings, parties, and festivals - never miss out on the best food events around. Sign up now for exclusive notifications! It's FREE.
It's the FoodTruckArmy!!!
Join Now
Similar Items Available...


































































































