2014 8' x 18' Kitchen Food Trailer with Fire Suppression System | Concession Trailer
2014 8' x 18' Kitchen Food Trailer with Fire Suppression System | Concession Trailer
Item No: CAP-UFT159T3
Location: California
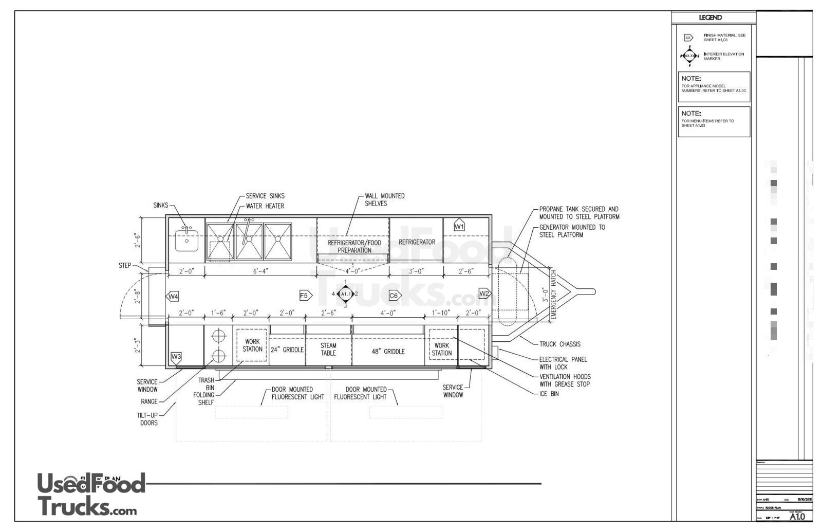
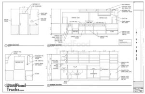
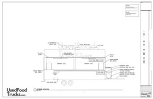
Specifications
- Trailer Specifications
- VEHICLE Year of Manufacture: 2014
- Kitchen Equipment Runs On: GAS & ELECTRICITY
Equipment List
- Vehicle Features
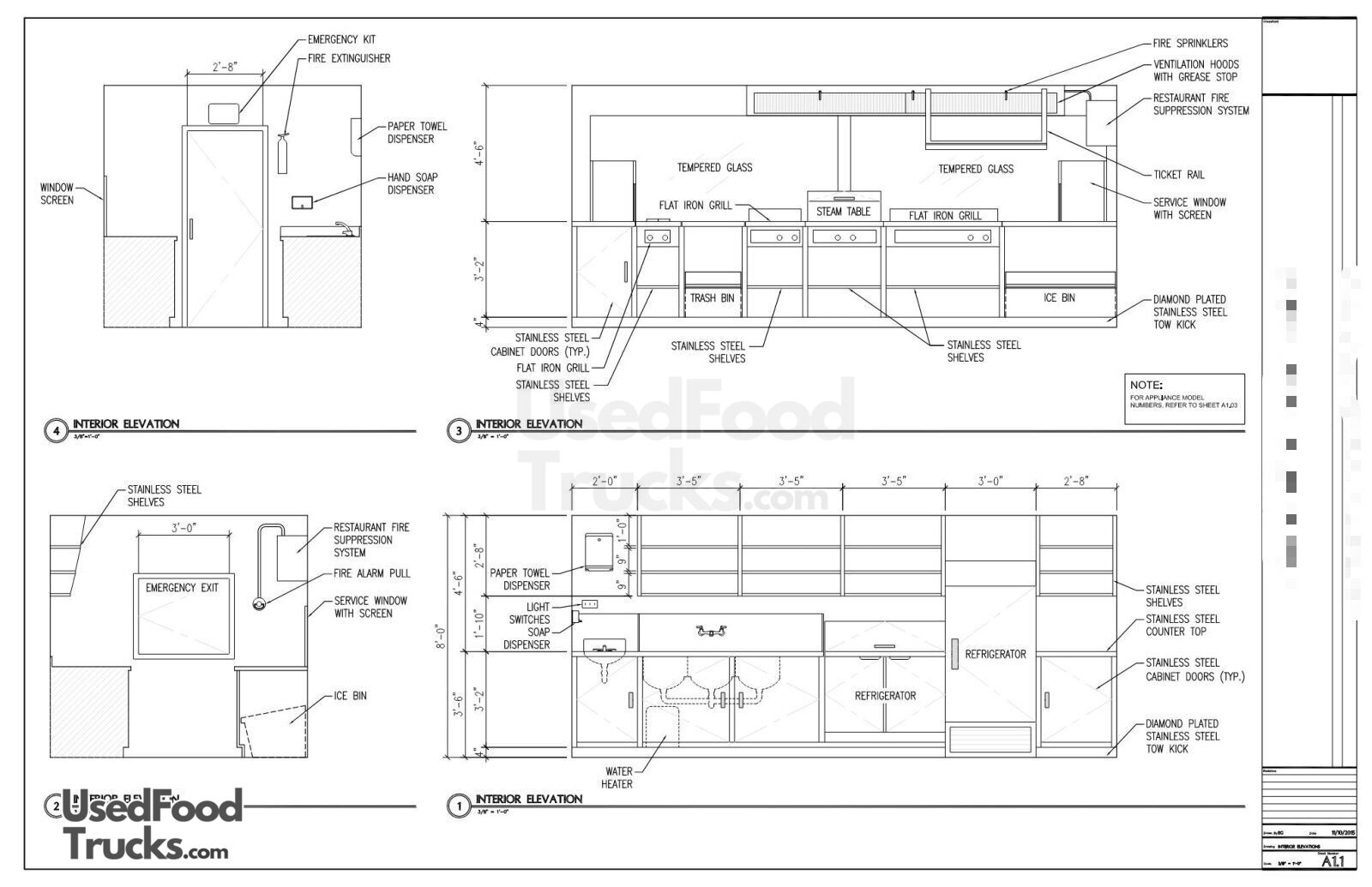
- Air Conditioning
- Concession Window(s): 2 - 16"
- Cabinets
- Stainless Steel Wall Covers
- Awning
- Diamond Plated Aluminum Flooring
- Exterior Customer Counter
- Surveillance Cameras
- Equipment Power Supply
- Propane Tank(s): 25 gallons
- Generator: 9500 Watts Predator
- Refrigeration
- Reach-In Upright Cooler: Beverage Air, 27 Cu Ft.
- Prep Station Cooler: Beverage Air, 60" width with two doors, 17.1 Cu Ft.
- Cooking Equipment
- Stovetop: 2 burners - American range
- Flatgrill: (2) 48" and 24" - American range
- Steam Table: (2) pan size, 24 Width, 15,000 BTU
- Food Service Equipment
- Ice Bin
- Kitchen Equipment
- Exhaust Hood: 16'
- Exhaust Fan: (2) 41-3489 cfm
- Fire Extinguisher: 1
- Pro Fire Suppression System: ANSUL
- Work Table: (2) 24" and 22"
- Electrical
- Exterior Lighting: 2 - 24" Fluorescent
- Interior Lighting: 2 - 24" Fluorescent
- Electrical Outlets: 3 Doubles at Interior
- Breaker Panel
- Plumbing
- Hot Water Heater: Ariston GL4S
- Hand-washing Sink
- Triple Sink
- Fresh Water Tank: 30 gallons
- Gray Water Tank: 30 gallons
- Retail Equipment
- Open Signage: LED Board
- Other Equipment
- Electrical Outlets: 3
- Extra Concession Windows: Emergency Exit Window
- Exterior Work Lights
- Additional Equipment
- Stainless Steel Shelves 13 Linear Ft.
Find Events for Your Food Truck
From corporate gatherings to weddings, parties, and festivals - never miss out on the best food events around. Sign up now for exclusive notifications! It's FREE.
It's the FoodTruckArmy!!!
Join Now
Similar Items Available...













































































