Fully Loaded 2004 Mobile Kitchen Freightliner MT45 Kitchen Food Truck
Fully Loaded 2004 Mobile Kitchen Freightliner MT45 Kitchen Food Truck
Item No: FLT-UFT854B3
Location: Florida
$88,000
Specifications
- Truck Specifications
- VEHICLE Year of Manufacture: 2004
- Manufacturer: Freightliner
- Model: MT45 Kitchen Food Truck
- Length: 23'
- How many Miles on the engine?: 180 miles
- What Year was Kitchen Installed: 2019
- Kitchen equipment runs on: GAS & ELECTRICITY
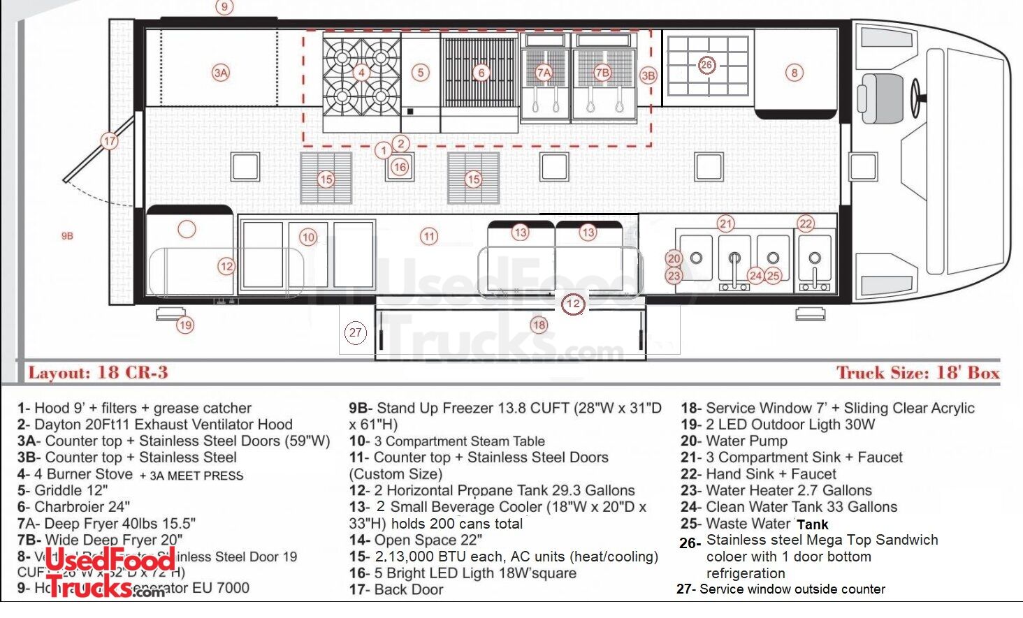
Equipment List
- Vehicle Features
- Air Conditioning: 2 units- 13,000 BTU each
- Concession Window(s): 80''x36"
- Spare Tire
- Removable Trailer Hitch
- Cabinets: 3 with of plenty space
- Stainless Steel Wall Covers
- Insulated Walls
- Diamond Plated Aluminum Flooring
- Exterior Customer Counter: fold down
- Surveillance Cameras: cameras with wifi system
- Equipment Power Supply
- Propane Tank(s): 2 tanks 29.3 gallons each
- Generator: Honda EU70001S QUIET 7000 WATTS
- Refrigeration
- Upright Freezer: Premium 13.8 Cuft
- Reach-In Upright Cooler: Turbo air M3r19-1 25" M3 Series 20Cu.ft
- Refrigerator: 2 danby soda coolers, 120 cans each , stainless steel
- Prep Station Cooler: Mega top Sandwich cooler with bottom cooler
- Cooking Equipment
- Stovetop: 4
- Chargrill: Asber 24" (4) 16,000 BTU
- Flatgrill: 12" GRIDDLE with 5/8 thick plate
- Fryer(s): 1 40 pound fryer, 1 75 pound double wide fryer
- Steam Table: 3 long, large compartments
- Food Service Equipment
- Espresso Machine: breville
- Kitchen Equipment
- Exhaust Hood: 8'
- Exhaust Fan: Dayton 20FT11
- Fire Extinguisher: 2
- Pro Fire Suppression System
- Work Table
- Electrical
- Exterior Lighting: LED
- Interior Lighting: LED
- Electrical Outlets: GFT outlets
- Breaker Panel: 1 panel 125 amp 12-space 24 circuit and1 panel just for AC Units
- Plumbing
- Hot Water Heater: Bosch T 2.7 gallon electric mini- tank under sink
- Hand-washing Sink
- Triple Sink
- Fresh Water Tank: 33 gallons
- Gray Water Tank: 40 gallons
- Retail Equipment
- Sound System: inside and outside BOSS audia MR4.3B 200 Watt
- Cash Register
- TV
- Other Equipment
- Electrical Outlets
- Water Tank
- Transmission - Automatic
- Diesel Engine
- Additional Equipment
- Big Commercial Rice Cooker, Breville espresso machine, 1 counter top electric espresso machine, 1 stove top espresso maker
- 2 truck battery chargers with jumping cables
- Cooking utensils such as tongs, knives of all kinds, ladles, serving utensils, forks, spoons, cutting boards, frying machine supplies and cleaning materials and equipment, water test strips, all kinds cooking thermometers, sanitizing solutions ,
- folding tables
- folding chairs
- 2 generators
Find Events for Your Food Truck
From corporate gatherings to weddings, parties, and festivals - never miss out on the best food events around. Sign up now for exclusive notifications! It's FREE.
It's the FoodTruckArmy!!!
Join Now
Similar Items Available...












































