Used 2000 Chevrolet Workhorse Food or Dessert Truck / Ice Cream Truck
Used 2000 Chevrolet Workhorse Food or Dessert Truck / Ice Cream Truck
Item No: FLT-UFT756B3
Location: Florida
SOLD
Specifications
- Truck Specifications
- VEHICLE Year of Manufacture: 2000
- Manufacturer: Chevrolet
- Model: Workhorse Step Van
- Length: 26'
- How many Miles on the body?: 158,000 miles
- How many Miles on the engine?: 158,000 miles
- What Year was Kitchen Installed: 2020
- Kitchen equipment runs on: ELECTRICITY
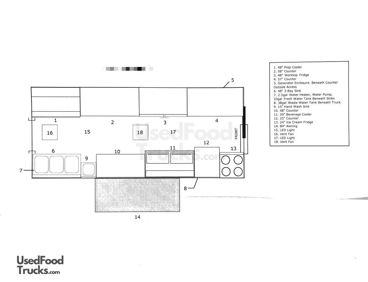
Equipment List
- Vehicle Features
- Concession Window(s): 8'
- Cabinets
- Stainless Steel Wall Covers
- Insulated Walls
- Awning: Window cover
- Exterior Customer Counter
- Backup Camera
- Equipment Power Supply
- Generator: Cummins Onan 7000 watts
- Shore Power Cord: 25'
- Refrigeration
- Deep Freezer
- Slide-top Cooler
- Refrigerator
- Prep Station Cooler
- Kitchen Equipment
- Exhaust Fan: 2
- Fire Extinguisher
- Work Table
- Electrical
- Exterior Lighting
- Interior Lighting
- Electrical Outlets
- Breaker Panel
- Plumbing
- Hot Water Heater: 2.5 gallon
- Hand-washing Sink
- Triple Sink
- Fresh Water Tank: 33 gallon
- Gray Water Tank: 38 gallon
- Retail Equipment
- Sound System: Bluetooth/PA system compatible
- Other Equipment
- Transmission - Automatic
- Diesel Engine
- Anti-Lock Brakes
- Exterior Work Lights
Item Video
Find Events for Your Food Truck
From corporate gatherings to weddings, parties, and festivals - never miss out on the best food events around. Sign up now for exclusive notifications! It's FREE.
It's the FoodTruckArmy!!!
Join Now
Similar Items Available...



































