2016 Isuzu NPR 16'3" Diesel Coffee Truck / Fully Loaded Mobile Cafe
2016 Isuzu NPR 16'3" Diesel Coffee Truck / Fully Loaded Mobile Cafe
Item No: AZT-UFT101L2
Location: Arizona
SOLD
Specifications
- Truck Specifications
- VEHICLE Year of Manufacture: 2016
- Manufacturer: Isuzu
- Model: NPR Coffee Truck
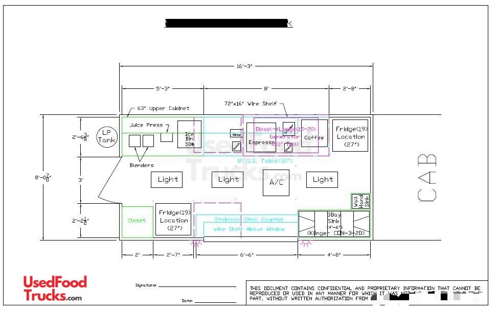
- Length: 16'3"
- How many Miles on the body?: 29,000 miles
- What Year was Kitchen Installed: 2017
- Kitchen equipment runs on: GAS & ELECTRICITY
Equipment List
- Vehicle Features
- Air Conditioning: front and rear
- Concession Window(s): 2
- Cabinets: 3
- Exterior Customer Counter: fold down
- Equipment Power Supply
- Propane Tank(s): 1 - 60 gallons
- Generator: 20,000 kW PowerTech with remote start
- Refrigeration
- Refrigerator: 2 True upright fridges
- Food Service Equipment
- Coffee Machine: Bunn ITCB Twin Infusion
- Espresso Machine: Nuova Simonelli Apia II and Gooseneck Arm
- Commercial Blender / Juicer: Blendtec Professional 800
- Electrical
- Exterior Lighting
- Interior Lighting
- Breaker Panel
- Plumbing
- Hot Water Heater
- Hand-washing Sink
- Triple Sink
- Fresh Water Tank: 100 gal
- Gray Water Tank: 64 gal
- Retail Equipment
- POS System: 2 tablets and stands with card readers
- Other Equipment
- Electrical Outlets
- Transmission - Automatic
- Diesel Engine
- Additional Equipment
- Bunn G92 Dual Hopper Portion Control Grinder, Grundfod MQe-45 115 V Pump, Nuova Simonelli MDX a Saaap On-Demand Grinder
- soft water loop used for beverages
Item Video
Find Events for Your Food Truck
From corporate gatherings to weddings, parties, and festivals - never miss out on the best food events around. Sign up now for exclusive notifications! It's FREE.
It's the FoodTruckArmy!!!
Join Now
Similar Items Available...





































