2017 - 8.5' x 20' Quality Food Pizza Soft Serve Concession Trailer
2017 - 8.5' x 20' Quality Food Pizza Soft Serve Concession Trailer
Item No: WYP-UFT707F2
Location: Wyoming
SOLD
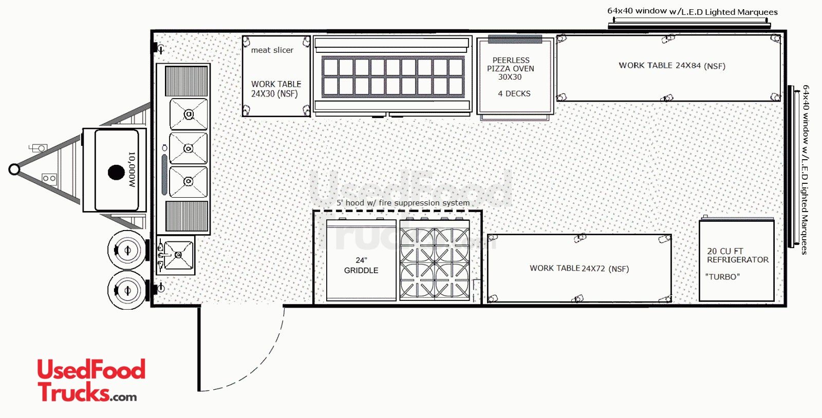
Equipment List
- Vehicle Features
- Air Conditioning: portable ac/ heater
- Concession Window(s): 2- 4.5'x3'
- Spare Tire: 1
- Stainless Steel Wall Covers
- Floor Drains: 1 rear
- Exterior Customer Counter: 2 fold up shelves
- Equipment Power Supply
- Propane Tank(s): 2-100 gal
- Generator: Briggs and Stratton 8000 watt
- Shore Power Cord: 150' 50 amp
- Refrigeration
- Refrigerator: 20 cu ft. "Turbo" Refrigerator
- Prep Station Cooler: 72"
- Cooking Equipment
- Stovetop: 4 burners
- Flatgrill: 30"
- Pizza Oven: Peerless Pizza Oven 30x30 4 decks
- Food Service Equipment
- Soft Serve Machine(s): 9 Flavor Electro Freeze Fuzionate air cooled
- Kitchen Equipment
- Exhaust Hood: 72"
- Exhaust Fan
- Fire Extinguisher: 2
- Pro Fire Suppression System
- Work Table: 3 Stainless Steel Work Tables
- Electrical
- Exterior Lighting: LED
- Interior Lighting: flourecent
- Electrical Outlets: 7 in 1 out
- Breaker Panel: 50amp
- Plumbing
- Hot Water Heater: On Demand
- Hand-washing Sink
- Triple Sink
- Fresh Water Tank: 50 gal
- Gray Water Tank: 60 gal
- Retail Equipment
- Cash Register: 1
- Additional Equipment
- meat slicer
- 2 soup warmers
- light up menu
- electric jack
- light up marque
- stabilization jacks
- 10' tube man
Find Events for Your Food Truck
From corporate gatherings to weddings, parties, and festivals - never miss out on the best food events around. Sign up now for exclusive notifications! It's FREE.
It's the FoodTruckArmy!!!
Join Now
Similar Items Available...





























