BRAND NEW Custom Order - 8 x 16' Kitchen Food Concession Trailer
BRAND NEW Custom Order - 8 x 16' Kitchen Food Concession Trailer
Item No: TXP-UFT568J3
Location: Texas
SOLD
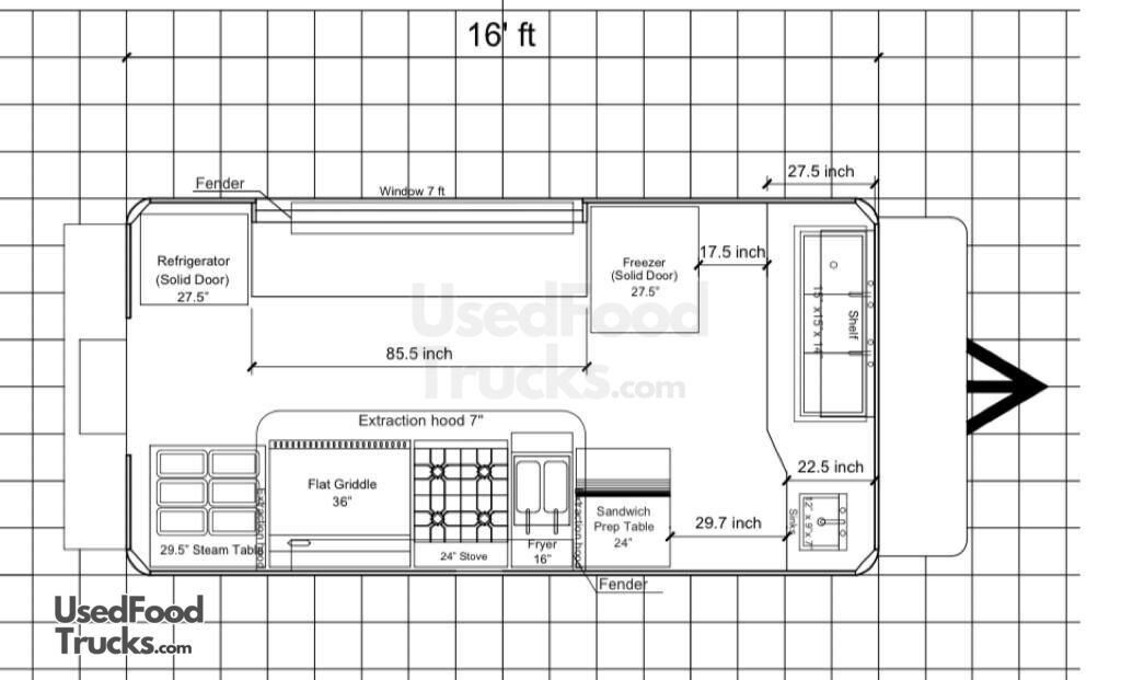
Specifications
- Trailer Specifications
- VEHICLE Year of Manufacture: 2025
- Kitchen Equipment Runs On: GAS
Equipment List
- Vehicle Features
- Air Conditioning: 12000
- Concession Window(s): 1 Window of 7ยด
- Spare Tire: 1
- Cabinets: On top of the windows
- Stainless Steel Wall Covers: On Kitchen Wall
- Insulated Walls: Yes, 1"
- Diamond Plated Aluminum Flooring
- Exterior Customer Counter: Fold Down
- Refrigeration
- Upright Freezer: Asber
- Refrigerator: Asber
- Prep Station Cooler: 27"
- Cooking Equipment
- Stovetop: 4 burners
- Flatgrill: 36"
- Fryer(s): 40lbs double basket fryers
- Steam Table: 30" for 6 Containers
- Kitchen Equipment
- Exhaust Hood: 7 Ft
- Exhaust Fan: .50 HP
- Electrical
- Exterior Lighting: 2 LED lights
- Interior Lighting: LED
- Electrical Outlets: 7 outlets
- Breaker Panel: 125 Amps
- Plumbing
- Hot Water Heater: On Demand
- Hand-washing Sink: Yes
- Triple Sink: Yes
- Fresh Water Tank: 30 Gallons
- Gray Water Tank: 37 Gallons
Find Events for Your Food Truck
From corporate gatherings to weddings, parties, and festivals - never miss out on the best food events around. Sign up now for exclusive notifications! It's FREE.
It's the FoodTruckArmy!!!
Join Now
Similar Items Available...
























































