2016 - 8.5' x 30' Food Concession Trailer
2016 - 8.5' x 30' Food Concession Trailer
Item No: OKP-UFT681C2
Location: Oklahoma
SOLD
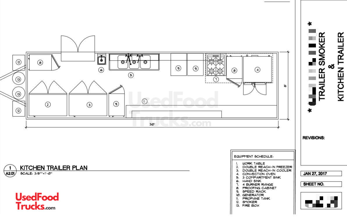
Equipment List
- Vehicle Features
- Air Conditioning: 2 Dometic
- Concession Window(s)
- Cabinets
- Stainless Steel Wall Covers
- Awning
- Exterior Customer Counter
- Equipment Power Supply
- Propane Tank(s): 2, 100 lb
- Generator: 2 Honda EB10000
- Refrigeration
- Upright Freezer: 2-door reach in
- Reach-In Upright Cooler
- Refrigerator: 2-door reach in
- Prep Station Cooler
- Chef Base
- Cooking Equipment
- Stovetop: Star max 24 countertop gas range
- Oven: Imperial convection ICV-1
- Warming Cabinet
- Kitchen Equipment
- Exhaust Hood: Larsen
- Work Table
- Electrical
- Exterior Lighting
- Interior Lighting
- Breaker Panel
- Plumbing
- Hot Water Heater: on demand
- Hand-washing Sink
- Triple Sink
- Fresh Water Tank: 40
- Gray Water Tank: 56
- Retail Equipment
- Sound System: 2 Bose Weatherproof
- POS System: square
- Other Equipment
- Exterior Work Lights
- Additional Equipment
- Avantco HPI-1836 heated proofers
- Crown amp, epson projector and screen, dish satellite
Find Events for Your Food Truck
From corporate gatherings to weddings, parties, and festivals - never miss out on the best food events around. Sign up now for exclusive notifications! It's FREE.
It's the FoodTruckArmy!!!
Join Now
Similar Items Available...




































































