Versatile - 2021 8' x 16' Catering Trailer with HCD Insignia Food Concession Trailer
Versatile - 2021 8' x 16' Catering Trailer with HCD Insignia Food Concession Trailer
Item No: CAP-UFT060Z3
Location: California
SOLD
Specifications
- Trailer Specifications
- VEHICLE Year of Manufacture: 2021
- Kitchen Equipment Runs On: ELECTRICITY
Equipment List
- Vehicle Features
- Air Conditioning
- Concession Window(s)
- Exterior Customer Counter
- Refrigeration
- Refrigerator
- Prep Station Cooler
- Cooking Equipment
- Food Warmer
- Steam Table
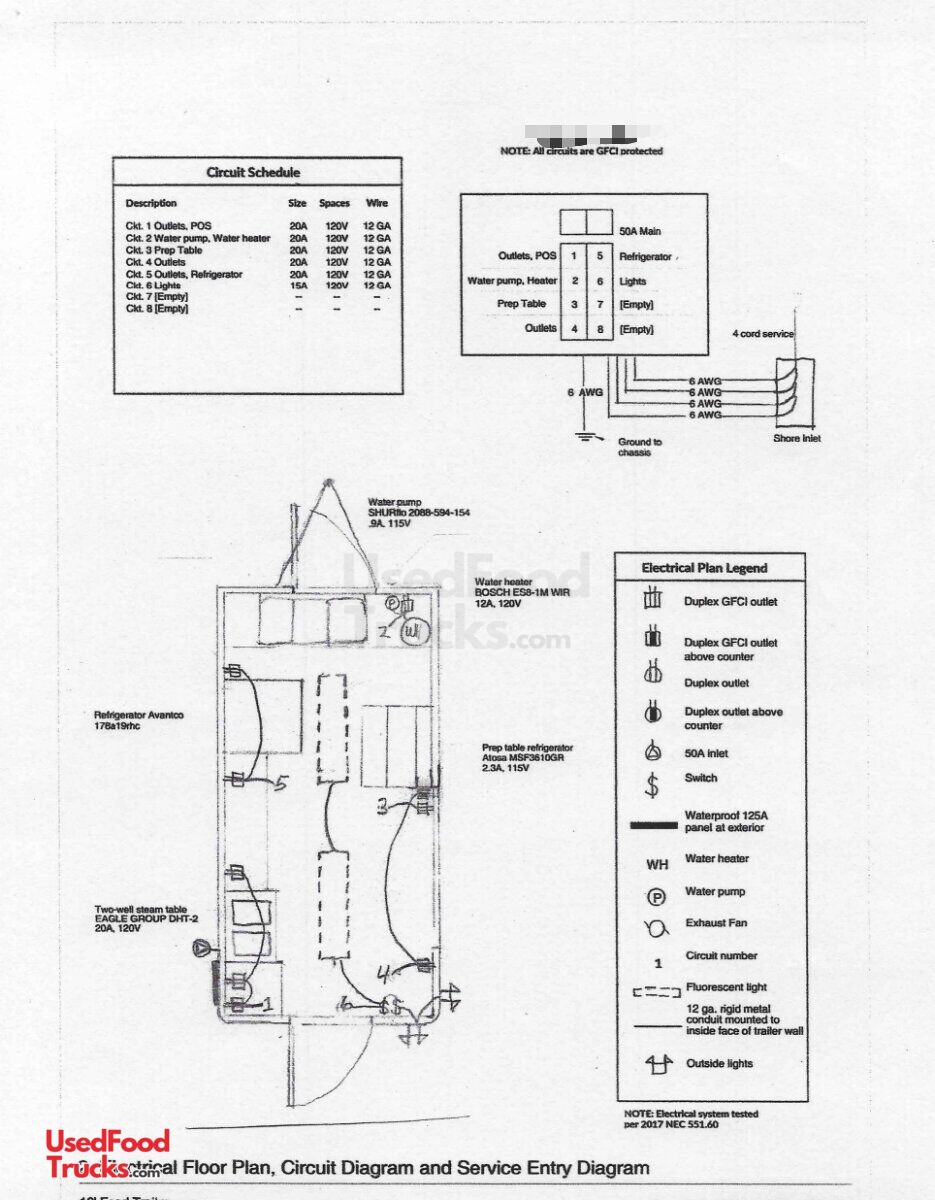
- Electrical
- Interior Lighting
- Electrical Outlets
- Breaker Panel: 50 A
- Plumbing
- Hand-washing Sink
- Triple Sink
- Additional Equipment
- Tables
Find Events for Your Food Truck
From corporate gatherings to weddings, parties, and festivals - never miss out on the best food events around. Sign up now for exclusive notifications! It's FREE.
It's the FoodTruckArmy!!!
Join Now
Similar Items Available...









































